Descrizione
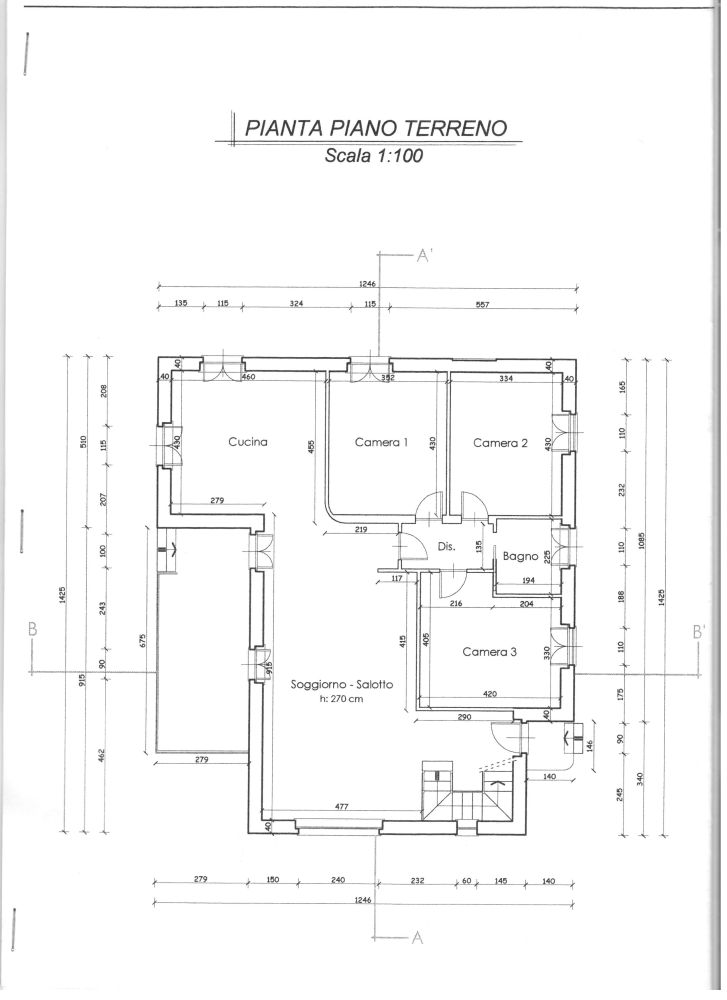
Proponiamo in vendita la struttura di una casa indipendente, parzialmente ristrutturata nel 2010, tetto compreso, dagli ampi spazi interni ed esterni. L'abitazione comprende un soggiorno, la cucina abitabile, 3 camere ed un bagno al piano terra; una camera di circa 40 mq al piano mansardato, oltre al locale sottotetto di circa 80 mq . Vi è eventualmente la fattibilità di creare una bifamiliare. Completa la proprietà il cortile privato di circa 500 mq, il locale ad uso magazzino/garage di circa 70 mq con la cantina sottostante. Possibilità di usufruire delle detrazioni fiscali in vigore a completamento della costruzione. Per informazioni e appuntamenti: agenzia Futuro Case di Carmagnola, telefono 0119715742. Immobile esente da certificazione energetica.
- ID Immobile
- Offerta Vendita
- Paese Italia
- Provincia CARMAGNOLA
- Indirizzo VIA RACCONIGI
- Agenzia Incaricata Futuro Case - Carmagnola
- Tipo immobile Rustico
- Prezzo: € 165.000,00
- Spese condominiali € 0,00
- Superficie: 180.00 Mq.
- Condizioni DA ULTIMARE
Altre Proposte di questa agenzia
In borgo San Bernardo di Carmagnola, proponiamo in vendita una porzione di villa bifamiliare così composta: AL PIANO TERRA, troviamo l'ingresso su ampio e luminoso soggiorno, la cucina abitatile con balcone, l'anti bagno ed il bagno; con scala in muratura si accede al PIANO PRIMO in cui ci sono due camere da letto, un'ulteriore cameretta/studio (tutte dotate di balcone) e 2 bagni (uno con vasca e l'altro con doccia). Completano la proprietà la spaziosa autorimessa di 52 mq, la cantina, il porticato esterno pavimentato ed il giardno privato di circa 80 mq. La costruzione è del 2011, i serramenti sono in legno con doppi vetri, mentre il riscaldamento è fornito dalla caldaia a gas metano. Le condizioni generali sono buone. L'immobile sarà libero dal 1 di febbraio 2026. Per informazioni e appuntamenti: agenzia FUTURO CASE di Carmagnola. Classe Energetica D Indice di prestazione energetica 137,96 kWh/m² anno. 197.00
D
Autonomo
|
|
La FUTURO CASE di Carmagnola propone in vendita un grazioso trilocale oggetto di totale e recentissima ristrutturazione. L'appartamento, al piano secondo con ascensore, è composto di ingresso su spazioso soggiorno con angolo cottura, disimpegno, 2 camere da letto, bagno con doccia, ripostiglio, 2 balconi; completa la proprietà il garage singolo nell'interno cortile. La doppia esposizione lo rende decisamente luminoso. L'immobile dispone , tra le varie finiture, dei faretti a led, delle tapparelle elettriche e della pompa di calore per la climatizzazione degli ambienti. L'arredamento presente, incluso nel prezzo di vendita, è recente e di buona qualità. Il condominio è stato oggetto di riqualificazione energetica nel 2023 ed è pertanto in ordine in tutte le parti comuni. Immobile in classe energetica B. Subito libero e disponibile. Per informazioni e appuntamenti: agenzia FUTURO CASE Carmagnola, telefono 0119715742.
83.00
B
|
|
In contesto residenziale, immersa nel verde e nella tranquillità, proponiamo in vendita una VILLA libera su 3 lati, di recente costruzione, e così composta: 1) al piano terra troviamo l’ingresso sul soggiorno, la cucina abitabile ed il bagno con locale lavanderia; 2) con accesso da scala interna si accede al piano primo in cui ci sono 3 camere da letto, di cui una dotata di ampia cabina armadi, il disimpegno, un balcone con accesso da 2 camere, ed il bagno con doccia; 3) al piano secondo sottotetto troviamo la mansarda con bagno, rifinita in tutte le sue parti e dotata di riscaldamento; 4) al piano seminterrato vi è poi il locale tavernetta, recentemente ristrutturata nella pavimentazione e negli infissi, oltre ad un locale deposito. Completano la proprietà il garage doppio al piano terra, 2 porticati, il cortile ed il giardino privato di circa 120 mq. La costruzione è del 2010, con finiture di pregio per quanto riguarda la pavimentazione firmata Versace e le porte interne di marca Bertolotto; sono inoltre presenti le inferriate su porte e finestre, l’antifurto e l’impianto di aspirazione centralizzato in tuti i vani. Il riscaldamento è a pavimento (vi sono solo i radiatori nel piano sottotetto), gestito a zone indipendenti, e la caldaia è a condensazione di recente installazione. Per ottimizzare il consumo energeticoi sono stati installati i pannelli solari sul tetto per la produzione di acqua calda sanitaria e sono presenti 2 pompe di calore per il raffrescamento/riscaldamento degli ambienti. Possibilità di arredamento per quanto riguarda la cucina fatta su misura, la cabina armadi e la parete cucina attrezzata posta nella tavernetta. Per informazioni e appuntamenti: agenzia FUTURO CASE CARMAGNOLA, telefono 0119715742. Certificazione Energetica 223.00
C
Autonomo
|


